Кемперы и автодома для отдыха от российского производителя Волгатрейд
6х6
Колесная формула
7,75м
Внутренняя длина
6
Спальные места
ПРЕМИУМ-АВТОДОМ SHACMAN №2
Стоимость
25 300 000 руб.
Стоимость без шасси
25 300 000 руб.
оставить заявку
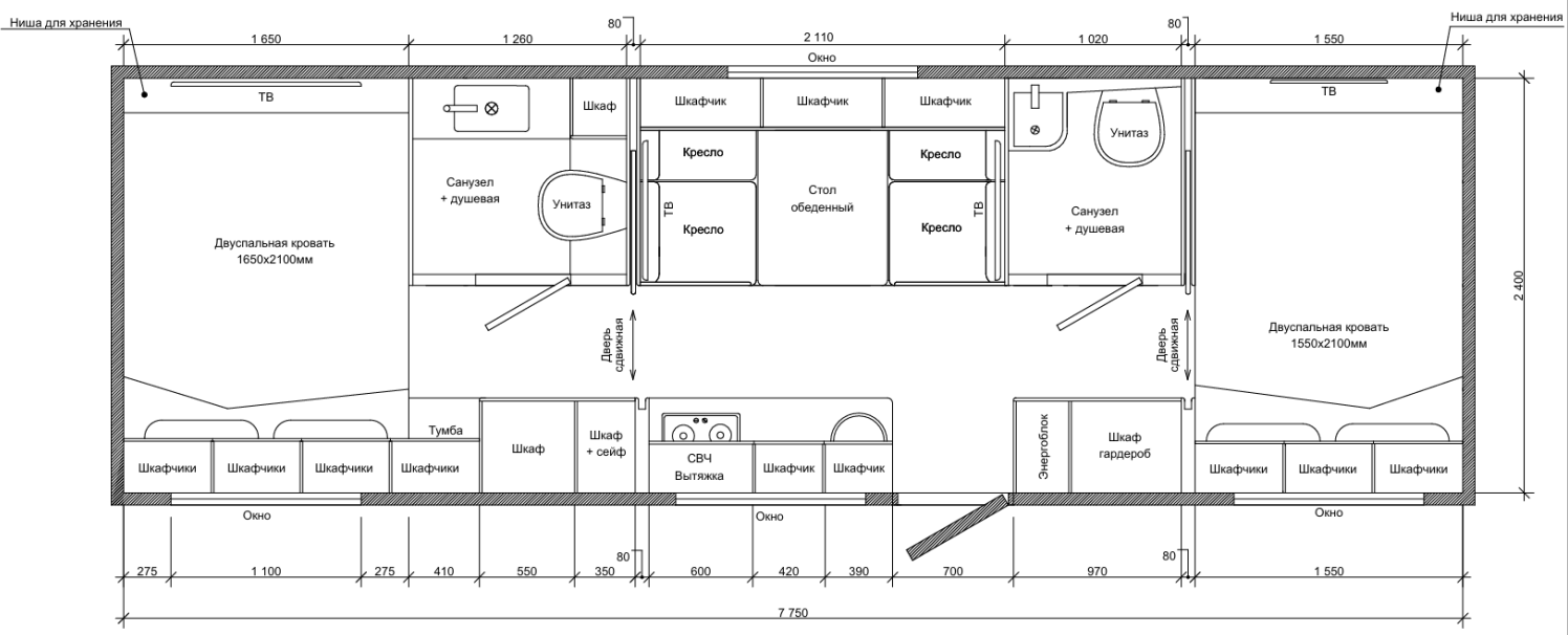
Премиальный автодом на базе Shacman X3000 — превосходный выбор для путешествий большой компанией. Пространство внутри разделено на три функциональные зоны:
- каюта с полноценной двуспальной кроватью
- мастер-каюта увеличенной площади с отдельным санузлом и душевой
- общая комфортабельная гостиная зона с удобными креслами и
- кухонный блок, укомплектованный всей необходимой бытовой техникой.

Особое внимание в проекте уделено не только интерьеру, но и максимально удобному использованию внешнего пространства:
- эксплуатируемая крыша с большим солнцезащитным зонтом и комплектом кемпинговой мебели — идеальное место, чтобы насладиться хорошей погодой с высоты автодома
- два маркиза-тента с комплектом стенок
- летняя кухня с большим газовым грилем
- множество багажных ящиков для размещения всего необходимого даже в длительных поездках

Такой автодом создаст идеальные условия для незабываемых автопутешествий!
Шасси SHACMAN X3000 6x6
Премиум-фургон прямоугольный из сэндвич-панелей (обшивка - пластиковый лист, обвязка - алюминиевый уголок) 7750мм х 2400мм х 2000мм
Дополнительное оборудование шасси:
• Лебедка электрическая передняя ЛПЭ81ВИ (8,1 тонна, 24В)
• Замена штатного топливного бака на увеличенный 700 л.
• Кронштейн светодиодной оптики с мини-багажником на крыше кабины с дугами защиты
• Панорамные светодиодные прожекторы для бокового света, устанавливаются на багажнике на крыше кабины 15W - 4 шт
• Светодиодный прожектор Aurorа 180W круглый высокой мощности на крыше кабины - 4шт
• Покраска кабины с дверными проемами и подкапотным пространством. Цвет - однотонный серо-бежевый
• Удлинение рамы для установки фаркопа и возможности буксировки прицепа
• Еврофаркоп для соединения с прицепом
• Автомобильная цифровая рация Megajet
• Камера заднего вида с монитором в кабине
Дополнительное оборудование фургона:
• Покраска фургона. Цвет – однотонный однотонный серо-бежевый
• Лестница на крышу фургона двухсекционная из нержавеющей стали
• Заниженная входная группа
• Багажник экспедиционный на крыше фургона
• Механизм подъема для запасного колеса на задней панели фургона
• Фальш-панели из алюминия на каркасе из нержавеющей стали по периметру автодома
• Ящики инструментальные багажные в задней части автодома – 2шт.
• Мини-ящики инструментальные багажные в межколесном пространстве задней оси – 2шт.
• Ящик для хранения генератора на левом борту автодома
• Ящик инструментальный багажный на правом борту автодома
• Ящик для хранения кемпинговой мебели на крыше кабины шасси
• Набор шанцевого инструмента
• Багажный отсек для хранения - 4 шт
• Технический отсек в фургоне для размещения коммуникаций - 2 шт
• Маркиза-тент ME350WG, настенная электрическая - 2 шт на правом и левом бортах
• Комплект стенок "ПРЕМИУМ" палатка-комната 5 сторон - установлен на левом борту.
• Мачта телескопическая с механическим подъемным механизмом для размещения прожекторов. Высота в разложенном виде - 6м
• Кронштейн с 4 светодиодными прожекторами рабочего света для мачты
• Чехол для прожекторов
• Летняя кухня - установлена в заднем левом ящике
• Площадка для размещения спутниковой антенны с дугами защиты
Окна и люки:
• Окно открывающееся откидное Dometic S4 со встроенной шторкой и москитной сеткой 1100x450мм - 3 шт.
• Окно открывающееся откидное Dometic S4 со встроенной шторкой и москитной сеткой 900x400мм
• Москитная сетка для входной двери типа «плиссе». Складывается путем сдвижения на направляющих.
Отделка:
• Мягкая обивка стен и потолка внутри спальных отсеков: оклейка поролоном 5мм и перетяжка высококачественной искусственной замшей
• Отделка рейками в спальных отсеках
• Мягкая обивка стен и потолка внутри основного отсека: оклейка поролоном 5мм и перетяжка высококачественной искусственной кожей
• Покрытие пола – влагостойкий ПВХ ламинат с герметизацией швов и периметра
• Отделка санузла с душевой 1: покрытие стен – плитка керамическая, покрытие пола - плитка керамическая
• Отделка санузла с душевой 2: покрытие стен – плитка керамическая, покрытие пола - плитка керамическая
Основной отсек:
• Вся мебель в автодоме производится только из влагостойкой ламинированной березовой фанеры высших сортов. Отделка- натуральный шпон, полуматовый лак
• Декоративная накладка на входную дверь с поручнем из нержавеющей стали
• Шкафчик навесной - 3 шт.
• Шкаф для размещения энергоблока
• Мини-шкафчик для размещения панели управления
• Шкаф-гардероб сушильный
• Подиум под гостиной зоной
• Стол обеденный со складным механизмом
• Кресло в обеденной зоне - 4 шт.
• Сушильная стойка на 2 пары обуви
Кухонный блок:
• Напольные шкафы с 3 выдвижными ящиками
• Напольный шкаф с полкой
• Напольный шкаф для встраивания техники под столешницей
• Шкафчик навесной для встраивания СВЧ
• Шкафчик навесной - 2 шт.
• Столешница из листового камня Corian
• Дополнительная откидная секция столешницы из листового камня Corian в проход с фиксацией в транспортном и рабочем положениях
• Рабочий фартук из листового камня Corian
• Мойка из нержавеющей стали (подклеивается снизу под столешницей)
• Смеситель кухонный
• Аксессуары (крючки для полотенец, рейлинг, магнитный держатель для ножей)
• Мусорное ведро выдвижное
• Варочная панель электрическая индукционная (2 конфорки) 220В
• Вытяжка кухонная автомобильная Sanjo 3J-50B 12V
• Холодильник компрессорный Dometic CoolMatic CRX 110
• СВЧ-печь Hotpoint-Ariston 220В без поворотного стола
• Набор посуды на 4 человека с креплением в транспортном положении
Спальный отсек - 1:
• Перегородка между спальным отсеком со сдвижной дверью с замком
• Тумба с ящиками с размещением под телевизором
• Тумба с выдвижными ящиками – 1шт
• Шкафчик навесной - 3 шт.
• Шкаф с полками с размещением стиральной машины
• Шкаф для оружейного сейфа
• Сейф оружейный
• Двуспальная кровать
• Ортопедический матрас трехслойный (латекс+кокос) двухспальный
• Отсек под кроватью с доступом из салона
• Стиральная машина с сушкой
Спальный отсек - 2:
• Перегородка между спальным отсеком со сдвижной дверью с замком
• Двуспальная кровать
• Ортопедический матрас трехслойный (латекс+кокос) двухспальный
• Тумба с ящиками с размещением под телевизором
• Шкафчик навесной - 2 шт.
• Отсек под кроватью с доступом из салона
Душевая+санузел - 1:
• Перегородка с распашной дверью с замком.
• Умный дверной замок с отпечатком пальца
• Шкаф-пенал с полками, дверки с замками-кнопками
• Тумба под раковину из искусственного камня (открывающаяся тумба, полка)
• Раковина, встроенная в фигурную столешницу из искусственного камня
• Зеркало с контурной внутренней подсветкой
• Туалет яхтный мацераторный 24В (cлив в бак черной воды)
• Смеситель с душевой лейком и настенным кронштейном
• Шторка сдвижная на рейлинге
• Гигиенический душ
• Сливные трапы с крышками 2 шт.
• Трап напольный из благородных пород дерева
• Аксессуары (вешалки, крючки, держатель туалетной бумаги, ершик и др.)
Душевая+санузел - 2:
• Перегородка с распашной дверью. Дверь в окантовке алюминиевого профиля с заверткой закрывания изнутри.
• Шкафчик подвесной для принадлежностей из искусственного камня с зеркалом на фасадной части
• Тумба под раковину из искусственного камня (открывающаяся тумба, полка)
• Раковина, встроенная в фигурную столешницу из искусственного камня
• Туалет яхтный мацераторный 24В (cлив в бак черной воды)
• Смеситель с душевой лейком и настенным кронштейном
• Гигиенический душ
• Шторка сдвижная на рейлинге
• Сливные трапы с крышками 2 шт.
• Трап напольный из благородных пород дерева
• Аксессуары
• Вытяжной вентилятор
Энергетика:
• Розетка внешнего ввода 220В
• Розетки внешнего вывода 220В в багажных отсеках и под маркизами
• Электроразводка кабелей до потребителей 12/24/220В
• Розетки 220В (два поста)
• Розетки двойные USB (type A + type C) для зарядки телефонов 2.1А
• Освещение внутри фургона LED-лентой
• Подсветки по периметру подвесных и напольных шкафов LED-лентой
• Плафоны индивидуальной подсветки для чтения в спальных отсеках - 4шт.
• Контурное освещение снаружи по периметру фургона панорамными led-прожекторами
• Освещение технических и багажных отсеков
• Энергоблок автодома
• Инвертор 24/220В Victron Energy QUATTRO 24/5000/120-100/100 (5000Вт) с функцией зарядного устройства аккумуляторов
• Шунт Victron Energy Smartshunt 500A SHU050150050
• Системный контроллер для инвертора Victron Energy Vega GX Touch 50
• Аккумулятор LiFePO4 24V200AH (24V /200Ah) - 3 шт.
• Генератор встраиваемый USR TEC60D
• Стартерная батарея AGM 12В/80Ач
• Система автоматической зарядки АКБ фургона от генератора шасси
• Панель управления автодомом
Водоснабжение:
• Комплект для заправки чистой воды в бак
• Трубопровод автодома
• Коллекторный узел водоснабжения автодома
• Фильтр для чистой воды (4000 л/ч)
• УФ-лампа для обеззараживания чистой воды
• Компрессор продувки системы водоснабжения 24В
• Резервный подогрев всей системы водоснабжения
• Диафрагменный водяной насос Arigo Pump SE 4000 (24В)
• Водонагреватель косвенно-электрический накопительный Webasto Isotemp Basic 50 (объем 50л.)
• Бак для чистой воды объемом 600 л.
• Бак серой воды объемом 200л.
• Бак черной воды объемом 70 литров
• Летний душ снаружи фургона. Лючок с кранами и душевой лейкой
• Электрический клапан слива серой воды 24В
• Короб для отведения слива из системы водоснабжения и бака чистой воды на элементы шасси.
Климат:
• Приточный клапан забортного воздуха с расположением в крышке люка технического отсека
• Электрический тёплый пол с термостатом, обеспечивает нагрев напольного покрытия в зонах прохода автодома
• Отопитель автономный дизельный Eberspacher 4 кВт c разводкой по отсекам и регулированием потоков
• Резервный отопитель дизельный Планар 4Д (4кВт) c разводкой по отсекам и регулированием потоков
• Пульт управления для ПЛАНАР 4Д ПУ-40 сб. 7245
• Приточно-вытяжной потолочный вентилятор/люк TYTXRV - 2 шт. в санузле 1 и над обеденным столом
• Электрический кондиционер Fresco
• Напольный автомобильный кондиционер Dometic Freshwell 3000 с разводкой по отсекам и регулированием потоков
Мультимедиа:
• Телевизор LED 32” Smart с цифровым ТВ - 2 шт в гостиной зоне
• Телевизор LED 43” Smart с цифровым ТВ - в спальном отсеке
• Телевизор LED 55” Smart с цифровым ТВ - в спальном отсеке
• Саундбар с Bluetooth/USB и активным беспроводным сабвуфером (2 комплекта: в гостиной зоне и хозяйской спальне)
• Переговорное устройство кабина-фургон
• Спутниковая антенна ТВ самонастраивающаяся Viscom ресивером. Работа в движении на любой скорости
• Комплект цифровых тюнерных приставок для подключения к спутниковому телевидению
• HDMI 2.0 разветвитель 1 вход 4 выхода (сплиттер 1x4) Pro-HD X14
• Мультисвитч с разводкой + комплект кабелей
• Автомобильный 3G/4G-роутер AUTO BOX Dual-Sim, Baltic Signal
• Система кругового обзора с регистратором Hikvision
Прочее:
• Зонт складной, разборный с креплением в установочное место на переднем бортуфургона, диаметр купола - 3 м
• Комплект кемпинговая мебель для эксплуатации на крыше (стол и 2 стула) хранится в багажном ящике на крыше кабины
• Комплект кемпинговая мебель для размещения под маркизой (стол и 2 стула) хранится в багажном ящике
• Устройство газового пожаротушения автономное
• Огнетушитель ОП-2 с креплением – 2шт.
• Аптечка медицинская с креплением – 2 шт.

Похожие товары

Rs\Seo\SeoPageDto Object
(
    [url:Rs\Seo\SeoPageDto:private] => 
    [h1:Rs\Seo\SeoPageDto:private] => 
    [title:Rs\Seo\SeoPageDto:private] => 
    [desc:Rs\Seo\SeoPageDto:private] => 
    [keywords:Rs\Seo\SeoPageDto:private] => 
)
наверх
Автодома
Комплектующие